2-к квартира, 4/17 эт., 69м²

Рязань, Касимовское шоссе, д. 32 к 5

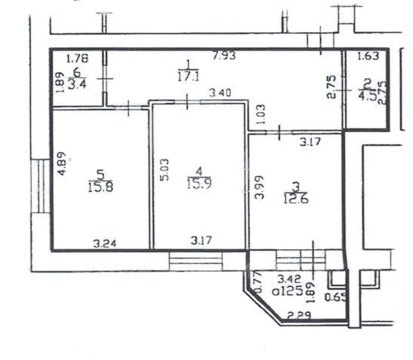
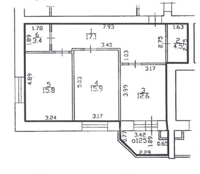
Просторная кухня площадью 12.6 квадратных метров имеет наличие выхода на утепленную лоджию, которую можно оборудовать как дополнительное место отдыха. Остается установленный кухонный гарнитур, облегчая процесс обустройства нового жилища.
Особое внимание заслуживает продуманная система хранения вещей. Встроенный шкаф-купе в коридоре обеспечит порядок и свободное пространство в жилых комнатах. А так же предусмотрено дополнительное функциональное помещение внутри комнаты, которое легко превратить в удобную рабочую зону, гардеробную или удобный склад для вещей. 
Для парковки автомобилей жильцы смогут выбрать удобную стоянку своего автомобиля либо на открытой площадке двора, либо воспользоваться услугами подземного паркинга. А удачная транспортная доступность облегчит передвижение по городу. 

При покупке с нами, Вы гарантированно получаете полное и качественное юридическое сопровождение, контроль и грамотное ведение всего процесса сделки, от задатка до момента получения документов на собственность и ключей!
Тип предложения Продам
География Рязань, Рязанская область
Тип объекта
Вторичный рынок
Адрес
Касимовское шоссе, д. 32 к 5
Комнат
2
Планировка
Стандартная
Тип комнат
Раздельные
Общая площадь
69,30 м2
Жилая площадь
31,70 м2
Площадь кухни
12,60 м2
Этаж
4
Этажей в доме
17
Высота потолков
2,70 м
Санузел
Совмещенный
Балкон
Лоджия
Ремонт
«Евроремонт»

Все ваши сообщения мы читаем и все пожелания учитываем, но, к сожалению, ответ не гарантируем.

Если вы расчитываете получить ответ, не забудьте заполнить это поле.
Отправить

Сообщение будет отправлено на электронную почту автора объявления. Ваш электронный адрес будет ему доступен для ответа.

Отправить
Отправить